蕨市塚越6丁目 中古一戸建て 埼玉県蕨市塚越6丁目4,990万円の中古一戸建て|中古住宅や中古物件情報|ME不動産埼京

TEL0120-530-077

定休日:水曜 営業時間:9:00~

>
>
中古一戸建て
>
蕨市
>
JR京浜東北・根岸線
>
蕨市塚越6丁目 中古一戸建て

中古一戸建て

蕨市塚越6丁目 中古一戸建て お気に入り
価格 4,990万円値下がり ローンシミュレーション
所在地 埼玉県蕨市塚越6丁目
この地域周辺の物件を見る
土地面積 85.14m² (25.75坪) 建物面積 88.19u
築年月 2014年12月築 間取り 3LDK (-)
交通
JR京浜東北・根岸線 /芝南公民館 バス3分 停歩10分
JR京浜東北・根岸線 西川口/徒歩16分
ここがおすすめ

ご来店後にアンケートにお答え頂くと3,000円のQUOカードをプレゼント(1組様1回限り、後日郵送)


  • 現地外観写真 たっぷりの陽光と心地よい風が舞い込む住まい
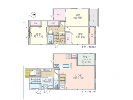
  • 間取り図(販1戸建) 間取り
  • 現地外観写真 上質感あふれる外観デザイン。魅力の住まいを実現。
  • 現地外観写真 ここから始まる新生活を応援いたします
  • リビング リビング上部には吹抜を採用!開放感溢れるリビングです ※家具はCGです
  • リビング 明るい陽光が注ぎ、寛ぎの雰囲気に満たされるリビング・ダイニング。
  • その他内観 家族の笑顔が自然と生まれてくる、そんな雰囲気のダイニングに仕上がっています。
  • キッチン ゆとりあるキッチンではご家族と楽しくお料理ができます。
  • キッチン カウンター越しにお話しをしながら毎日のお料理をもっと楽しく
  • 洗面台・洗面所 スタイリングに便利な三面鏡、ミラーキャビネットで細かい物スッキリ
  • 浴室 落ち着いた雰囲気でゆっくり寛げるバスルーム
  • その他内観 WIC付きのお部屋で充実したプライベート時間を過ごせます。
  • 寝室 明るいバルコニーサイドに洋室を設置。目覚めの良い寝室に。
  • 子供部屋 2面採光で気持ちよく自然光が取り入れられるのでお子様のお部屋にもピッタリ
  • その他 太陽の恵みを感じるぬくもりあふれる空間
  • 玄関 明るい陽光が入り込む玄関。ご家族の靴もスッキリ収納できる玄関収納付き!
  • バルコニー 暖かな陽光が降り注ぐバルコニーはお洗濯におすすめ。爽やかな風も心地よいです。
  • その他 ウォークインクローゼットの活用で生活空間スッキリ
  • トイレ トイレは安心の2箇所!朝のバタバタも一安心です。
  • その他内観 面倒なお片づけは食洗機にお任せ!家事の負担が減って、時間にも気持ちにもゆとりができます。
  • その他内観 基本的なお手入れはフィルターのみ!お手入れのしやすさも魅力です。
  • その他内観 IHクッキングヒーターは天板の調理面がフラットなので調理後はサッと一拭きするだけ!
  • その他内観 食材のストックはもちろん、日用品の収納など使い方はいろいろ
  • その他内観 室内物干しポール。梅雨や花粉の時期に大活躍します。
  •  目の前が駐車場だと雨の日も大量にお買い物をした時も便利ですね
  • 玄関 玄関前は屋根付きで雨が降っていても濡れにくいです。
  • 現地外観写真 シンプルで落ち着きのある建物は住むかたの個性でオリジナルなものになっていきます。
  • その他内観 新鮮な空気をお部屋に取り込んで停滞していた「悪い空気」を追い出して健康的な毎日を送りましょう。
  • その他内観 訪問者が一目でわかる、安心のTVモニター付きインターフォン
  • その他内観 浴室テレビでくつろぎの時間が過ごせます
お問い合わせ、資料請求、見学のお申し込みはこちらから

電話をかける(携帯・PHS可)
0120-530-077
「ホームページを見た」とお伝え下さい。

お問い合わせ番号をお伝えください
RHS-991001001

内見予約
お問合せ
内見予約・お問い合わせ

セールスポイント

特徴
  • バス・トイレ別
  • フローリング
  • オール電化
  • 追い焚き
  • 室内洗濯機置場
  • システムキッチン
  • シャワートイレ
  • シャワー
  • 浴室乾燥機
  • IHクッキングヒーター
  • コンロ三口
  • Wクローゼット
  • バルコニー
  • TVドアホン
  • プライスダウン
セールスコメント
 


物件概要

採光面 - 構造/階数 木造/地上2階建
建ぺい率 60(%) 容積率 200(%)
駐車場 現況/引渡し 空家/相談
土地権利 所有権 私道負担面積 -

接道状況 接道: 北 公道 道路幅: 4.4m 用途地域
第一種住居地域
セットバック なし 法令上の制限 -
地目 宅地 地勢
建築確認番号 都市計画 市街化区域
小学校区 蕨市立塚越小学校
(埼玉県蕨市)
この学区の他の物件を見る
中学校区 東中学校
(埼玉県蕨市)
この学区の他の物件を見る
取引態様 仲介
情報更新日 2026年04月14日 次回更新日 2026年04月28日
※各種情報と差異がある場合は現況優先となります
※物件情報の学区情報について
当サイト物件情報に記載されております通学区域(学区)情報は、国土数値情報ダウンロードサービスが提供する小学校区データ【2016年度】及び中学校区データ【2016年度】を元に加工したものですので、記載情報が現在の学区域と異なる場合がございます。
国土数値情報ダウンロードサービスのWEBサイト上で記述通り、データは必ずしも正確とは言えません。また、通学区域(学区)は毎年見直しの対象となりますので、そちらを踏まえ学区情報は参考としてご活用下さい。
お問い合わせ、資料請求、見学のお申し込みはこちらから

電話をかける(携帯・PHS可)
0120-530-077
「ホームページを見た」とお伝え下さい。

お問い合わせ番号をお伝えください
RHS-991001001

内見予約
お問合せ
内見予約・お問い合わせ

この物件でローンシミュレーションする

年利率
ボーナス払い 返済年数
頭金 直接入力する 万円

毎月のご返済額

ボーナス(×年2回)

物件価格

4,990万円
※返済金額はあくまでも目安です。

電話でお問い合わせ
ME不動産埼京

電話をかける

0120-530-077

※「ホームページを見た」とお伝えください。
お問い合わせ番号をお伝えください
RHS-991001001

お問い合わせ

お問い合わせ内容
お問合せ内容必須
【備考欄】
詳細な見学ご希望時間、ご質問、ご希望条件などがございましたらお聞かせ下さい。
(2000文字以内)
お客様情報
お名前必須
連絡先必須 メールアドレス

※ご記入いただいたメールアドレス宛てに、お問合せ内容の確認メールをお送りいたします。
※Yahoo!メールなどのフリーメールをご利用の場合、迷惑メールフォルダに入る場合があります。
 迷惑メールのフォルダ・設定等をご確認下さい。
電話番号
FAX(任意)
※ご入力いただいたお客さまの個人情報は、「個人情報の取扱いについて」に基づき適正に取り扱います。必ずお読みになり、同意の上お問い合わせください。

お気軽にお問い合わせください

0120-530-077
物件番号 RHS-991001001
※「ホームページを見た」
とお伝え下さい。